rizzatto@paolorizzatto.it
via Savona 97
20144 Milano Italy

Italiano

Exercises in Style NY

2000

con G. Pardi, M. Tadini

ACE Gallery, New York

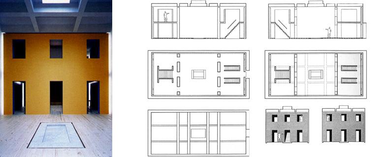
This house, virtual development of a real house built on a Mediterranean isle, is the staging as if in a theatre, of an essential dwelling. Essential not in the sense of minimal but in the more particular significance of the idea of inhabiting. As in a traditional Italian house, the layout develops simmetrically, some coloured walls highlight and mark the divisions. Different sound perspectives, room after room, define the sounding space and compose an entire musical performance in the big central space.